Powered blank steel Conveyor rollers
                                    
 conveyor rollers
                                
 331
            
                                    Interested in the product?
Get in touch with us as a commercial customer or request access to the partner area to receive further benefits.
Description
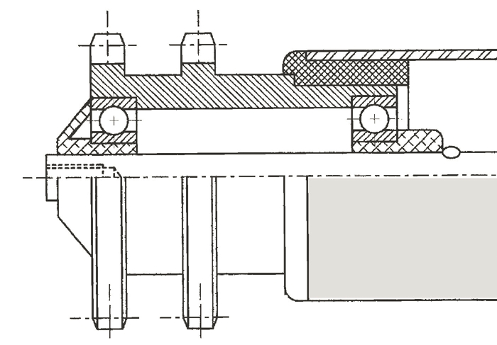
Drive section
Dual sprocket wheel 1/2" x 5/16", 11 steel or alternatively plastic sprockets, available as a fixed drive with press or welded fit or as an accumulating conveyor. Press fit fixed drive should only be used for continuous conveyance.
Thrust bearing
Plastic bearing liner with dual heat seal and grooved ball bearing.
Payload
40 kg/roller
Made to measure, please specify the following values:
Installation length (mm)
Axle length (mm)
Axle variant
Properties
- Tube-Outer Ø: 50x1,5 mm